- Knowledge Base
- Legacy Products
- Element Series
-
BOOM
-
Duet 3
-
Symphony Desktop
-
Symphony Studio
-
Symphony I/O Mk 2
-
Jam X
-
HypeMiC
-
MiC +
-
ClipMic digital 2
-
Groove
-
Jam +
-
MetaRecorder
-
Plugins
-
Apogee Control Remote
-
FAQ
-
Legacy Products
- AD-16x & DA-16x
- AD-16 & DA-16 (non-x versions)
- AD-8000
- AMBEO Smart Headset
- AMBus Cards
- Big Ben
- Duet (Firewire)
- Duet 2
- Duet for iPad/Mac/PC (USB)
- Avid Pro Tools Duet
- Element Series
- Ensemble (Firewire)
- Ensemble (Thunderbolt)
- GiO
- Jam
- Maestro App
- Maestro 2
- MiC
- MINI Products
- One
- One (iPad, Mac, PC)
- PSX-100
- Quartet
- Rosetta 200
- Rosetta 800
- Rosetta AD
- Sennheiser ClipMic
- Symphony32 PCI Cards
- Symphony 64 PCIe & Thunderbridge
- Symphony I/O Mk 1
- Symphony Mobile
- Trak2
- X-Digi-Mix
- X-FireWire
- X-HD
- X-Symphony
- X-Video
-
First Take
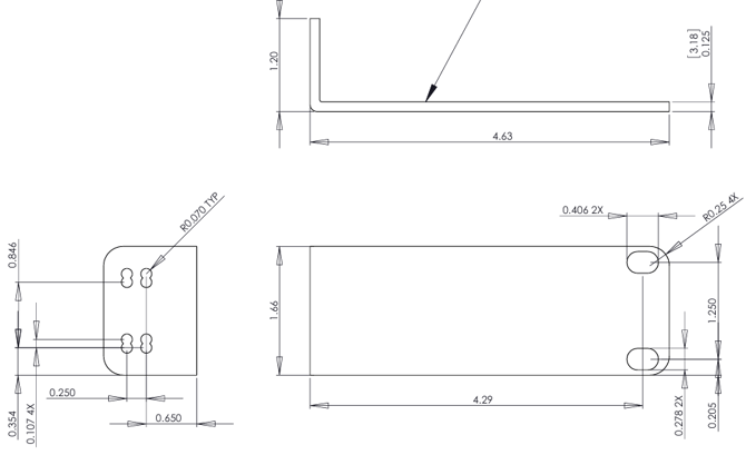
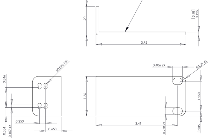
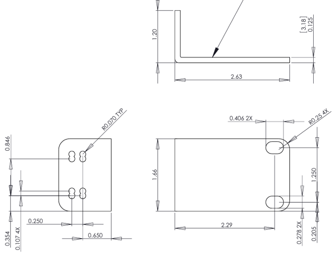
Element Rack Ear Measurement diagrams for models 24, 46, 88
This article provides the rack ear bracket measurements and diagrams for the Element 24, Element 48, and Element 88.
UNLESS OTHERWISE SPECIFIED, DIMENSIONS ARE IN INCHES WITH METRIC IN BRACKETS. TOLERANCES:
.XX ±.015
.XXX ± .010
ANGULAR ± 0° 30'
Material: 3.2mm Cold Rolled Steel
Rack ears require longer screws. Measurements 4-40 x 0.50
Element 24 Rack Ears:

Element 46 Rack Ears:

Element 88 Rack Ears:
